NOSOTROS
Work
Contact
NOSOTROS
Work
Contact
Javier Fernández Silva

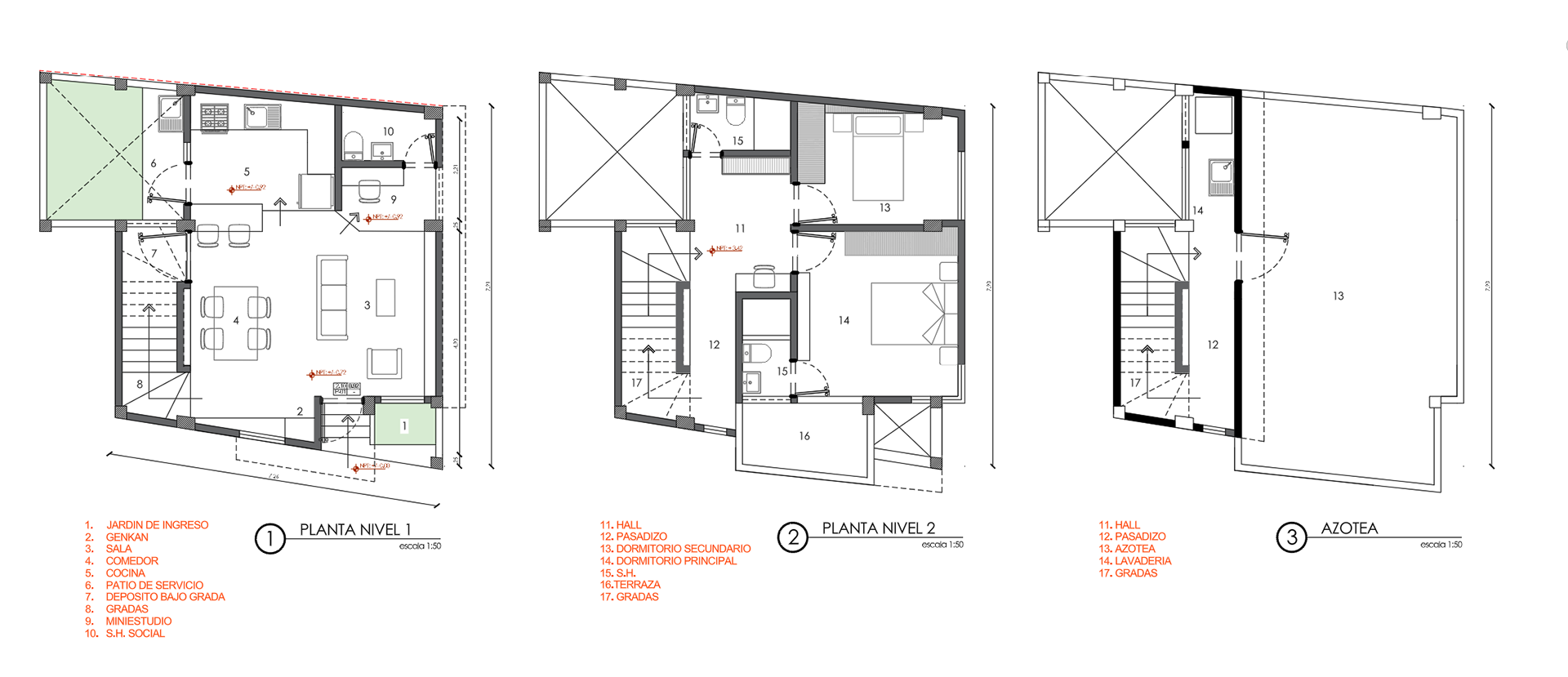
VIVIENDA JK - INTERIORES

PROYECTO: VIVIENDA JK - INTERIORES
AREA: 48m2
DISEÑO/RENDER: IDEARQ
LUGAR: HUANCAYO, PERÚ
AÑO:2025

You may also like

PROYECTO: VIKA CAKES - COFFEE SHOP
2025
PROYECTO: BRASA HUANCA
2025
PROYECTO: VIVIENDA MJ - EXTERIOR
2025
PROYECTO: CAFÉ "LA PONDEROSA"
2025
PROYECTO: REMODELACION IGLESIA BAUTISTA "GRACIA Y PAZ"
2025
PROYECTO: MULTIFAMILIAR CP
2025
Multifamiliar Sumar
2022
RENDERS PARA GCM ARQUITECTOS
2025
PROYECTO: REMODELACIÓN DE COCINA
2024
PROYECTO: COCINA CR01
2025
↑Back to Top
Powered by Adobe Portfolio